Freestanding Over-Braced Jib Crane – 3m Arm
Freestanding Over-Braced Jib Crane – 3m Arm - 80kg - 3500mm / No Electric Kit is backordered and will ship as soon as it is back in stock.
Couldn't load pickup availability
Fast Shipping
Products typically dispatched within 1-2 working days*
Certification
Products include certification and training courses issue certificates upon completion
Flexible Payment
Bank Transfers accepted (Contact Us)
Best Rated
Trusted across the UK for lifting expertise and industry knowledge
-
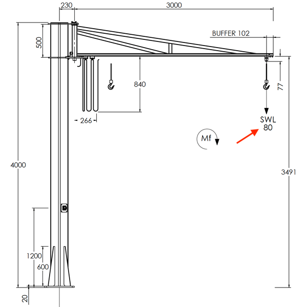
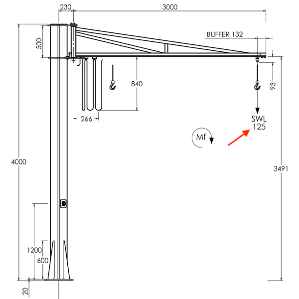
A Freestanding Over-Braced Jib Crane is engineered to provide controlled lifting, repeatable positioning, and safe load handling in environments where precision and reliability are essential. This Freestanding Over-Braced Jib Crane with a 3 Metre Arm forms part of a professional range of Cranes and Lifting Systems designed to deliver a stable lifting solution for workshops, maintenance departments, manufacturing facilities, and assembly areas that require consistent material movement without relying on overhead structures. As part of a professional lifting system, the crane supports accurate load control, reduces manual handling strain, and improves workflow efficiency. The freestanding configuration allows the crane to operate independently of building steelwork, making it ideal where structural mounting is not possible or where a dedicated lifting station is required. Smooth manual slewing across a 270° arc enables predictable load positioning, helping operators maintain safe and efficient handling practices.
Construction and Structural Design
The over-braced arm construction distributes lifting forces through the column and arm assembly to create a rigid and stable platform suitable for regular industrial use. A 3000 mm arm radius provides generous working coverage, allowing equipment, tools, and components to be positioned with confidence. The oversized base plate supports secure anchoring and effective load transfer into the foundation, contributing to long term operational stability. Manufactured to a Class A3 duty rating in accordance with BS 7333, the crane is built for frequent lifting cycles without compromising structural integrity. A powder coated finish protects the steel structure for indoor industrial environments while maintaining a clean professional appearance.
Industrial Applications
This jib crane is suited to a wide range of lifting tasks across UK industry. Typical uses include machinery servicing, workstation lifting, assembly processes, component positioning, and material transfer. When paired with compatible hoists or lifting devices, the crane enables accurate load placement while reducing operator fatigue. Consistent arm reach and column geometry ensure predictable load paths, which improves handling accuracy and helps maintain safe lifting routines in busy working areas.
Installation and Operational Benefits
Freestanding jib cranes offer practical installation advantages compared with building mounted systems. The crane can be positioned exactly where lifting support is required, allowing facilities to optimise workflow layouts without structural modifications. The rigid over-braced design improves lifting stability, while the slewing arc provides broad working coverage without excessive floor space requirements. Optional electrical kits can be specified for powered hoist operation, enabling the crane to integrate into a variety of lifting setups tailored to operational needs.
Reliable Lifting Performance
Designed for professional lifting environments, this crane supports repeatable handling, controlled movement, and dependable operation. Whether used for maintenance lifting, equipment positioning, or production support, it provides consistent performance aligned with industrial safety expectations. Adjustable Safe Working Load variants allow the crane to be matched precisely to application requirements while maintaining the same engineered structure. By combining structural rigidity, adaptable capacity selection, and straight forward installation, the crane forms a reliable foundation for everyday lifting operations.
-
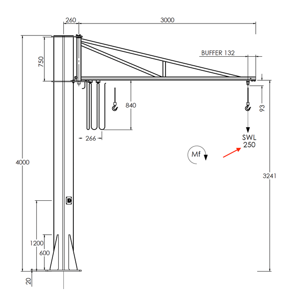
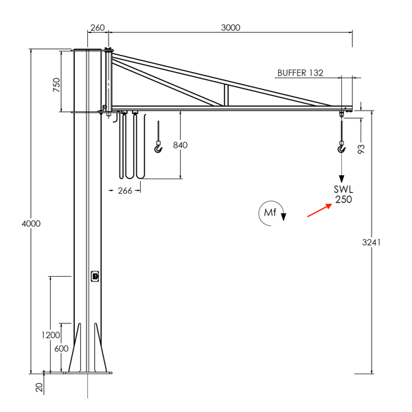
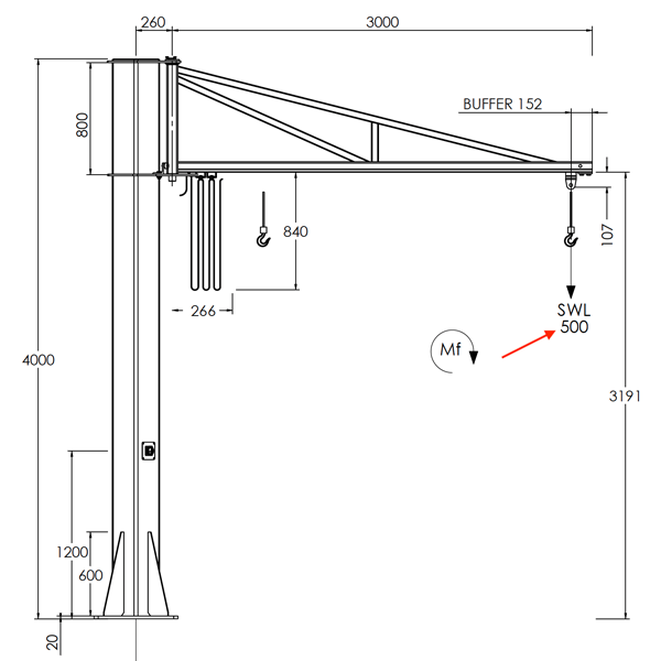
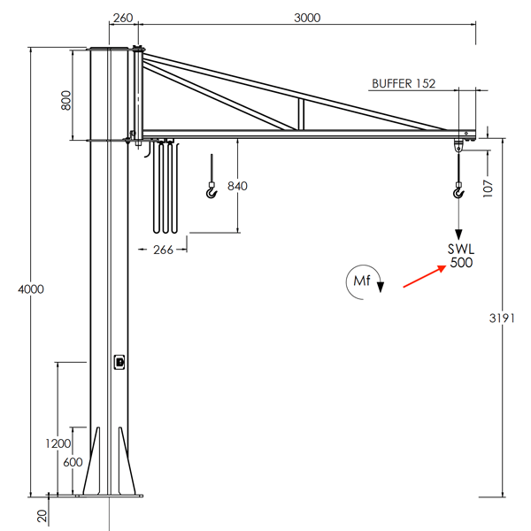
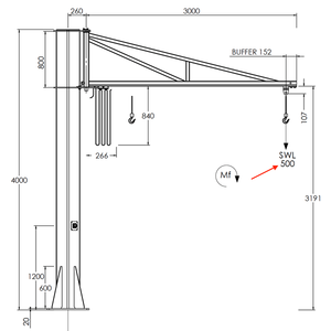
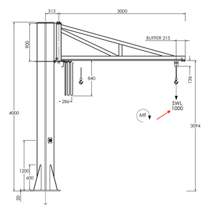
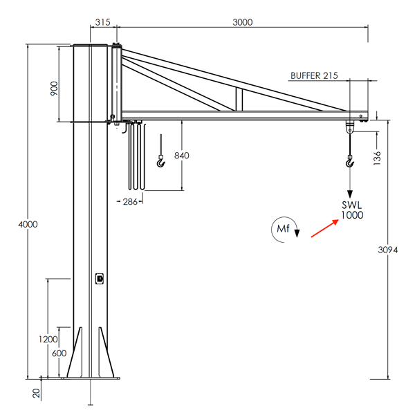
Arm Radius: 3000 mm Column Height: 4000 mm Slewing Arc: 270° Slewing Method: Manual Push Pull Finish: Powder Coated RAL 1006 Base Plate: Oversized Included Anchors: Not Included Documentation: UKCA / CE Mark where required and with Certification -
Specification sheet: 
Payment & Security
Payment methods
Your payment information is processed securely. We do not store credit card details nor have access to your credit card information.









